Saltar navegación

SESIÓN INFORMATIVA SOBRE PUESTA EN MARCHA DEL VIVERO DE EMPRESAS (OFICINAS)

tocina.vivero.JPG

SESIÓN INFORMATIVA SOBRE PUESTA EN MARCHA DEL VIVERO DE EMPRESAS (OFICINAS)

#Ciudadanía 02/03/2016

El jueves día 10 de marzo a las 18 h. en el Dulce Chacón.

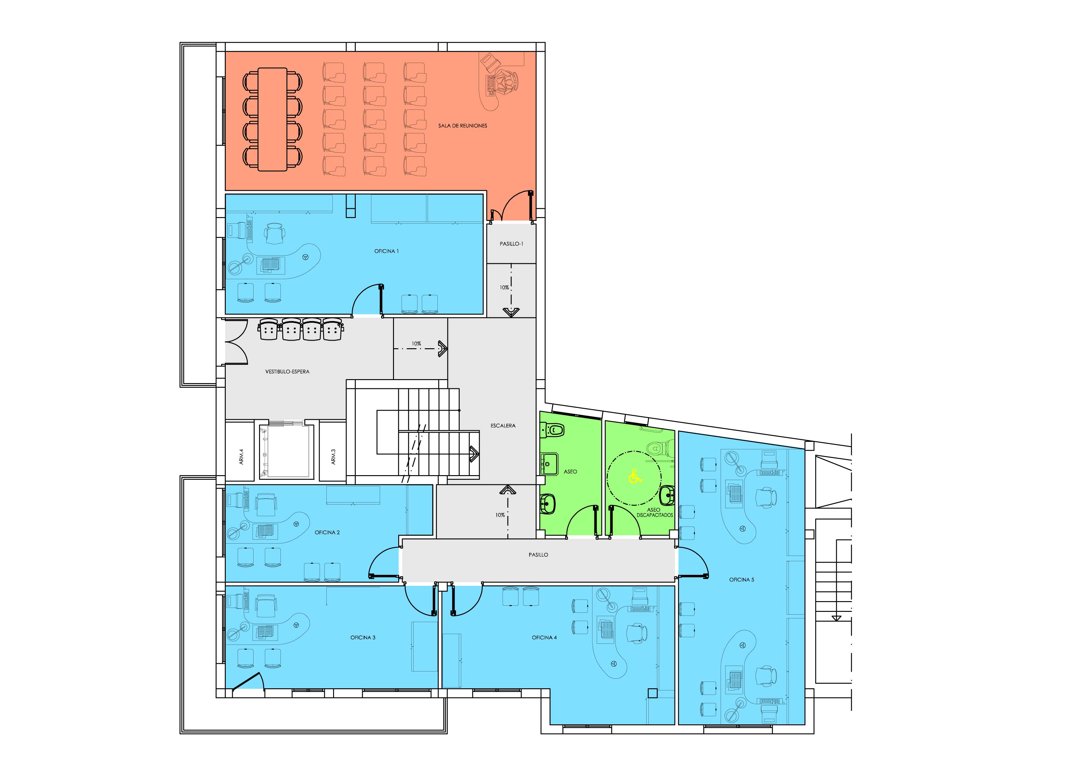
El Ayuntamiento de Tocina tiene previsto la puesta en marcha de un vivero de empresas (oficinas) en el edificio municipal de la calle España número 2 de Tocina, en el que se ubicaron los diferentes servicios administrativos durante la obra realizada en el Ayuntamiento durante el pasado año.
El Vivero de Empresas es una infraestructura de acogida temporal pensada para ubicar empresas en sus primeros pasos a un mínimo coste y con los siguientes objetivos:

  • Favorecer el nacimiento, puesta en marcha y consolidación de nuevas empresas.
  • Favorecer la generación de empleo.
  • Dinamizar el tejido empresarial local orientándolo hacia la mejora de sus factores de competitividad, eficiencia y rentabilidad.
  • Crear un medio idóneo en condiciones de precio y servicios que permita a lasiniciativas  empresariales desarrollar su Plan de Empresa para que, con un tiempo de estancia limitado, estén en situación de competir y actuar en condiciones de mercado.

Este espacio para emprendedores/as contará con espacios privados y comunes, aseos y ascensor, disponiendo a su vez las empresas participantes de suministros de electricidad, internet y limpieza.
Las personas interesadas en este asunto deben asistir a la sesión informativa que se celebrará el próximo jueves 10 de marzo , a las 18 h. en el Salón de Actos Dulce Chacón, ubicado en calle Julio Caro Baroja, en la que podrán resolverse todas las dudas al respecto.

tocina.vivero.JPG {FUTURO VIVERO}

 

viveroempresas.jpg {FUTURO VIVERO}